Lo Studio è stato coinvolto in un importante progetto per la realizzazione di una struttura per una Scuola Elementare in Cameroun, situata all’interno di uno dei maggiori parchi nazionali della nazione africana.
I Geom. Marzio Dal Toso e Gianluca Micheletto hanno progettato gratuitamente le strutture che verranno utilizzate come aule scolastiche, realizzate applicando risoluzioni tecniche occidentali alle tipologie costruttive e ai materiali locali.
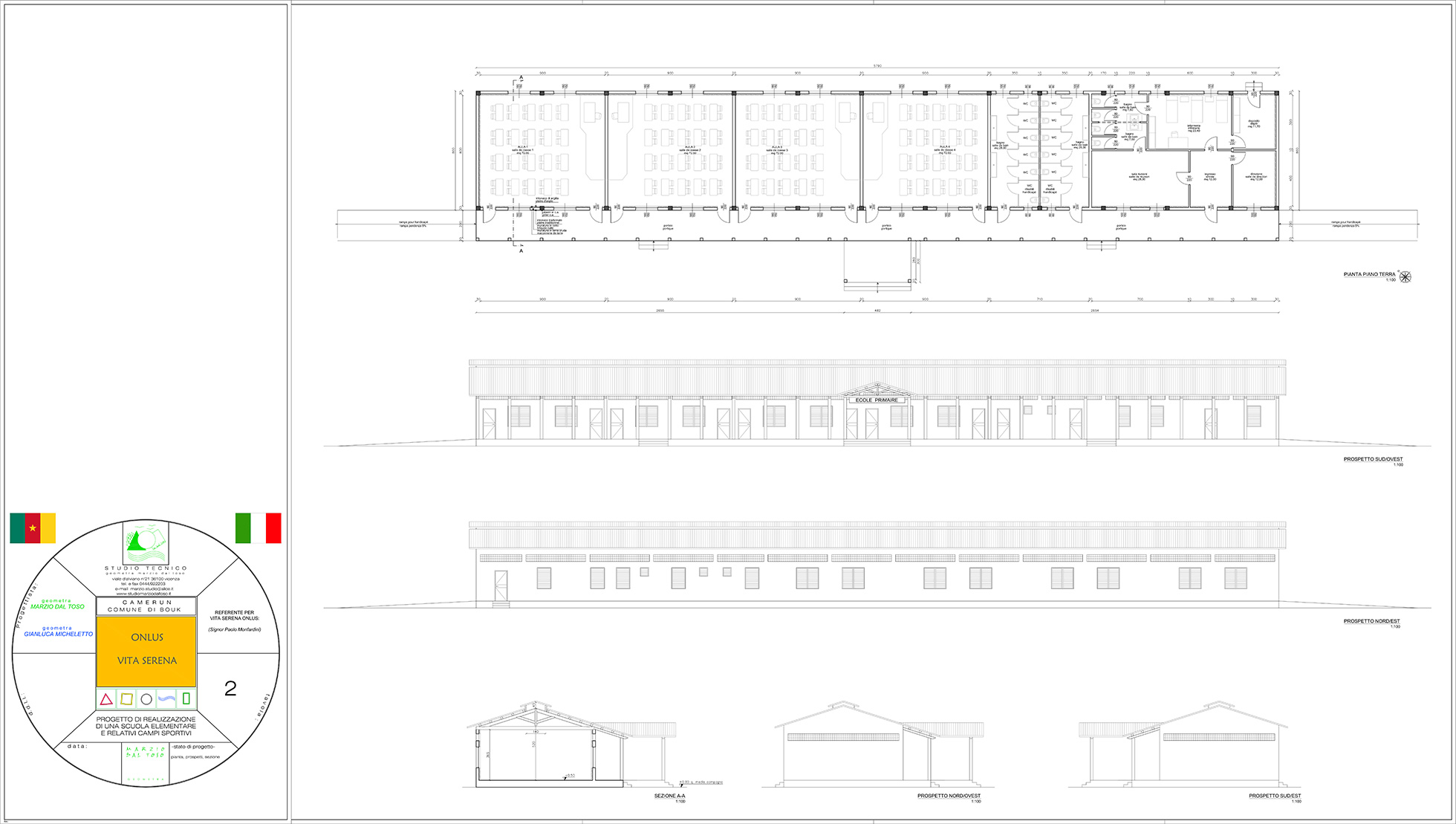
Si è prestata particolare cura nella progettazione architettonica, derivata dalle strutture tipiche dei luoghi, poichè il sito dei lavori è il villaggio di Bouk, localizzato all’interno di uno dei maggiori parchi nazionali del Cameroun.
Le strutture sono state realizzate in legno, metallo e cotto, con particolare attenzione alla climatica interna che, per motivi gestionali, non può essere coadiuvata da sistemi di ventilazione elettromeccanica, mancando le disponibilità finanziare anche solo per la gestione ordinaria delle strutture.
La scuola è totalmente autonoma per quanto riguarda la luminosità, la climatica interna e l’elettricità, che viene fornita da pannelli fotovoltaici.
In Cameroun, contrariamente a quanto accade in Italia, più si va verso il nord più aumentano la povertà e la miseria, a cui si aggiunge per mancanza d’istruzione l’ignoranza”. Da questa consapevolezza nasce il progetto, fortemente voluto da Paolo Monfardini della ONLUS Vita Serena di Valdagno, di costruire una scuola nel villaggio di Bouk.
Il villaggio di Bouk si trova lungo una delle due uniche strade (lunga circa 2300 km), che collegano il sud con il nord del Paese: si trova circa 100 km a nord dalla città di Ngaundere e a circa 200 km dalla città di Garoua. Per gli abitanti di queste zone, simili distanze sono immense, rendendogli di fatto impossibile utilizzare i servizi che una città vera e propria, per quanto povera, è in grado di offrire.
A Bouk esiste già una scuola statale: c’è un direttore, ci sono degli insegnanti e ci sono circa 350-400 alunni, residenti a Bouk e nei villaggi vicini. Manca tuttavia un edificio scolastico degno di questo nome.
Per la realizzazione della scuola con tecnologie e mentalità europea, serviranno dai 95.000 circa 105.000,00 Euro. Il progetto verrà seguito in tutte le sue fasi dal Sig. Monfardini stesso che garantirà, attraverso viaggi in loco e lo stretto contatto con persone locali di fiducia, il buon andamento dei lavori. Finanziatori sensibili al problema potranno inviare le loro offerte direttamente alla ONLUS Vita Serena di Valdagno, specificando “Contributo per scuola a Bouk – Cameroun”: la ONLUS Vita Serena provvederà quindi ad emettere a ciascun finanziatore una ricevuta valida a fini fiscali, così come a saldare le fatture dei fornitori camerunensi con bonifici bancari, erogati in scaglioni in base all’avanzamento dei lavori verificati e autorizzati dai responsabili del progetto.
Se volete contribuire in prima persona alla realizzazione della scuola elementare a Bouk,
potete effettuare una donazione a:
ONLUS Vita Serena di Valdagno
specificando nella causale “Contributo per scuola a Bouk – Cameroun”
Copyright © 2023, PIVA: 02670370242